
应用范围用于一般工厂皮带输送机称重,以及对破碎机、球磨机、筛分机或其它过程精确的控制给料量。也可用于监测生产量、控制产品装载及监测产品库存量。它以最低费用提供连续在线称重。技术特点◇ 无运动部件,维护量少。 ◇ 结构简单,力传递环节少,安装简捷方便。 ◇ 秤体不变形,计量稳定。 ◇  ...
用于一般工厂皮带输送机称重,以及对破碎机、球磨机、筛分机或其它过程精确的控制给料量。也可用于监测生产量、控制产品装载及监测产品库存量。它以最低费用提供连续在线称重。
◇ 无运动部件,维护量少。
◇ 结构简单,力传递环节少,安装简捷方便。
◇ 秤体不变形,计量稳定。
◇ 坚固的称重桥架,耐冲击,刚性好,无变形。
◇ 测量范围:0~2000t/h(根据订制宽度可到 8000t/h)
◇ 检定精度:±0.5%~±1%
◇ 输送机倾角:0~18 度
◇ 适用带宽:500~1400mm(可订制到 2400mm)
◇ 皮带速度:0~4m/s



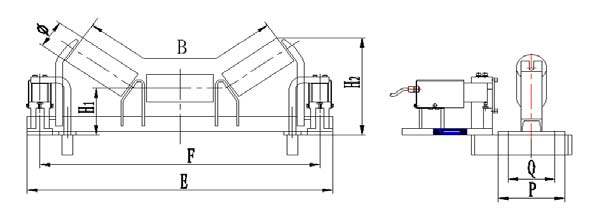
皮带宽度 B | Φ | E | F | Q | P | H1 | H2 |
500 | 89 | 800 | 740 | 130 | 170 | 145.5 | 340 |
650 | 89 | 950 | 890 | 130 | 170 | 145.5 | 377 |
800 | 89 | 1150 | 1090 | 130 | 170 | 145.5 | 396 |
1000 | 108 | 1350 | 1290 | 170 | 220 | 169 | 448 |
133 | 1350 | 1290 | 170 | 220 | 183.5 | 473 | |
1200 | 108 | 1600 | 1540 | 200 | 260 | 186 | 514 |
133 | 1600 | 1540 | 200 | 260 | 200.5 | 539 | |
1400 | 108 | 1800 | 1740 | 220 | 280 | 194 | 559 |
133 | 1800 | 1740 | 220 | 280 | 208.5 | 584 |