
工作原理粉体转子喂料机是采用垂直的转轴带动叶轮在水平内转动来喂料,定 量喂料机工作时,料仓物料是以与转轴平等的方式进入叶轮,转子的转速 所产生的离心力不影响物料的进入。喂入量与转子转速成线性关系,物料 在喂料机内是水平运动的,体积是恒定的,为了避免仓底压力造成粉体密度变化,喂料机采用调压机构,使粉体不...
粉体转子喂料机是采用垂直的转轴带动叶轮在水平内转动来喂料,定 量喂料机工作时,料仓物料是以与转轴平等的方式进入叶轮,转子的转速 所产生的离心力不影响物料的进入。喂入量与转子转速成线性关系,物料 在喂料机内是水平运动的,体积是恒定的,为了避免仓底压力造成粉体密度变化,喂料机采用调压机构,使粉体不受仓压影响并恢复自由状态,粉体密度稳定不变,因此这种喂料机性能稳定,定量的供给物料,在设计时采用柔性密封技术,解决了粉体喷流,磨损及温度变化等因素所产生的问题,使难处理的煤粉、粉煤灰等喷流性粉体的精确供给变成现实。
◇ 由于调压板及搅拌体的作用,使叶轮以恒定的容积排出物料,供给精度极高。
◇ 采用柔性密封结构,避免了喷流现象,并且解决了因磨损造成体积减少等问题
◇ 密封严密,没有粉尘泄漏现象。
◇ 在粉体容积一定的情况下,供料精度达到±0.5%左右。
◇ 由于供料精度高,为下位设备(转子秤)提供了稳定的工作环境,提高了整个计量系统操作可靠性及计量精度。
◇ 构造简单,轴承密封严密,无故障,易维护。
◇ 喂料机主要由搅拌叶片,调压板,喂料叶轮及搅拌体组成的调压机构和由喂料叶轮圆盘组成的计量机构两大部分组成。
◇ 在搅拌叶片的作用下物料送入下部圆筒,在转子叶轮及搅拌体作用下恢复自由堆积状态。
◇ 粉体以恒定的体积及密度填入到喂料叶轮中,准确,均匀地喂料,喂料精度极高。

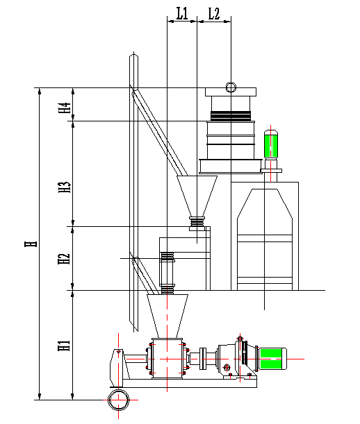
型号 | 流量 M³/h | 外形尺寸(mm) | 锁风泵 | 重量 | ||||||
H | H1 | H2 | H3 | H4 | L1 | L2 | h | (kg) | ||
HR-PDC-2D-30 | 3~30 | 5380 | »1650 | 1100 | 2100 | 530 | 650 | 490 | 529 | 6000 |
HR-PDC-2D-60 | 6~60 | 5680 | »1650 | 1100 | 2300 | 530 | 750 | 520 | 529 | 8300 |